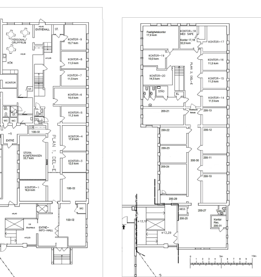
Kontorshotell Factory Office Ground Floor (se relationshandling/ritning)
Lediga kontor: 14 och 20 (fr.o.m. 2020-04-01)

Hyra: Mer information vid intresseanmälan.
I lokalen ingår följande:
- Tillgång till garage med bevakning.
- Gemensamt kök med kaffemaskin, kyl, frys, mikrovågsugnar och diskmaskin.
- Gemensam konfferransrum (för ca 20 personer) med projektor och whiteboardtavla.
- Gemensamma toaletter enligt relationshandling/ritning ovan.
- Lokalen har dubbla entréer från parkering samt busshållplats Lindövägen 17.
- Förmånligt pris av träningskort på Factory Fitness Norrköping.